Реконструкция мммагазина в Москве для универсама продуктов Верный — это настоящий проект, который требует внимания к деталям и креативного подхода. Реконструкция такого масштаба подразумевает не только обновление интерьеров, но и создание удобной атмосферы для покупателей. Строительство нового пространства включает в себя выбор современных материалов, продуманные планировки и, конечно же, уютные зоны для отдыха. Мы хотим сделать так, чтобы каждый посетитель чувствовал себя комфортно и мог наслаждаться процессом покупок. Важно учесть все нюансы: от освещения до расстановки полок с продуктами. Так что следите за обновлениями! Скоро мы увидим новый Верный — современный и удобный магазин, где шопинг станет настоящим удовольствием!
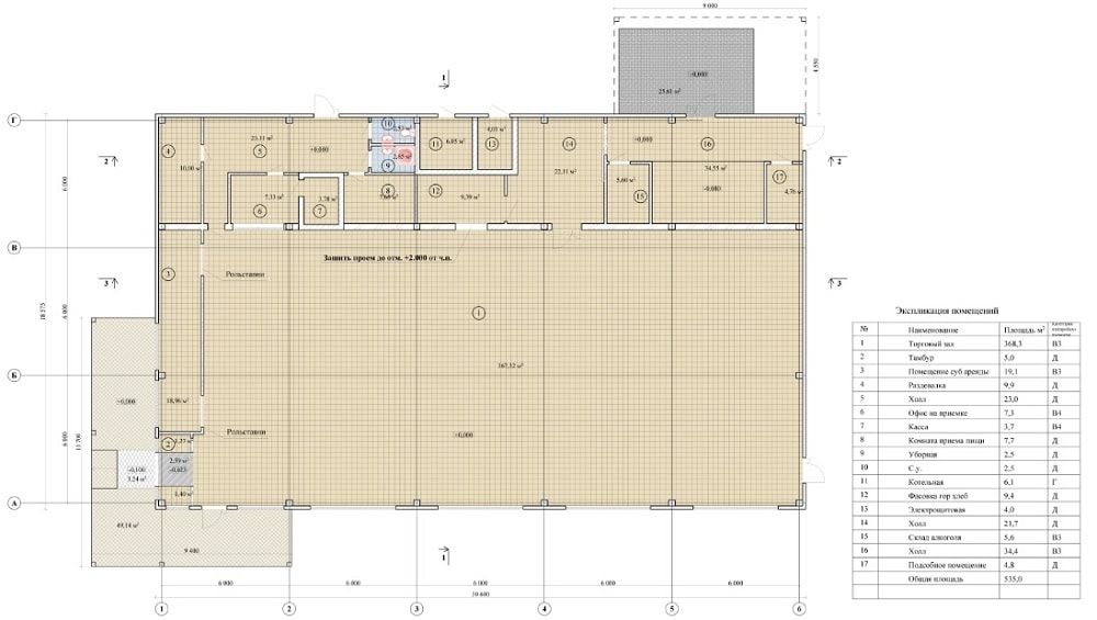
Проект строительства магазина 500 кв.м для розничной продажи продуктов питания и товаров повседневного спроса по адресу: г. Домодедово, мкр. Белые столбы, ул. Ленина, 16а. Площадь здания 535 кв.м, объем 3100 куб.м. Конструктивная схема здания - металлический несущий каркас и стеновые сэндвич панели ГЖС. Основными критериями в определении архитектурно-планировочного решения торгового комплекса являются технология организации торговли, фирменное стилевое решение и действующие нормативы и правила.
Здание магазина представляет собой один одноэтажный разновысокий объем, 4-х угольный в плане. На главном фасаде здания расположен главный вход для покупателей. Высота тамбура – 3,5 м до низа подвесного потолка. Высота торгового зала 4,2 метра (от уровня пола до низа несущих конструкций. За относительную отметку 0,000 принята отметка чистого пола 1-го этажа, равная абсолютной отметке на местности 178.260.
В уровне входа размещается торговый зал магазина «Верный». Предполагаются необходимые по площади загрузочные, административно-бытовые, подсобные и технические помещения (электрощитовая, водомерный узел, агрегатная, газовая котельная), уборные для персонала. Для загрузки товаров в продовольственный магазин предусмотрено загрузочное помещение со специализированными воротами. Временное хранение мусора, отходов и товарных упаковок предусмотрено на хозяйственной площадке в контейнерах.
Наружные стены продовольственного магазина выполнены из сэндвич панелей заводского изготовления толщиной 150 мм с наполнением из минераловатных базальтовых плит. Цветовые решения панелей выбраны согласно фирменному стилю торговой сети «Верный» - яркокрасный – колер RAL 3020; серый RAL 7047.
Декоративные детали фасада: -клинкерный кирпич облицовочный Feldhaus Klinker.
Цоколь – керамогранитная плитка.
Кровля плоская по металлическим фермам, неэксплуатируемая с уклонами к воронкам. Водосток внутренний организованный. Кровля перед входом в магазин полностью накрывает площадку крыльца. Предусмотрены навесные рекламные щиты на фасадах с фирменными эмблемами торговой сети «Верный».
Освещение прилегающей территории и фасадов предусмотрено современными светильниками и фонарями, в том числе настенными и отдельно стоящими.
Конструктивная схема здания каркасная, с панельными наружными стенами.
Класс функциональной пожарной опасности здания магазина Ф3.1
Категории производственных и технических помещений по взрывопожарной и пожарной опасности – В3, В4, Г, Д.
Проектируемое здание относится по степени огнестойкости II.
- по конструктивной пожарной опасности к классу «С0»;
- по конструктивной пожарной опасности конструкций к классу «К0»
Каркас здания - металлические колонны с металлическими фермами и балками, с сеткой колонн 6 м по цифровой оси и 13 м 5 м по буквенной.
Вокруг здания предусмотрено асфальтобетонное покрытие и покрытие тротуарной плиткой. У главного входа расположена стойка для тележек с защитным бордюром. Над вход-ной зоной для посетителей и стойкой для тележек и велосипедов предусмотрен навес.
Внутренние перегородки помещений касс, газовой котельной и электрощитовой выполнены кирпичными толщиной 250 мм. Перегородки остальных помещений запроектированы из пенополистирольных блоков толщиной 300 мм в торговом зале и 100 мм - в иных помещениях.
Основные технико-экономические показатели.
- Общая площадь земельного участка 0,15 Га.
- Площадь застройки 618 м2.
- Общая площадь здания: 535 м2 , в т.ч.
Площадь торгового зала около 319 м2 до зоны касс, всего 368,32 м2. - Строительный объем 3101 м3.
- Этажность здания: 1 этаж.
- Максимальная высотная отметка здания: 6,575 м.
- Количество машиномест на участке строительства: 16, на прилегающий к участку территории возможна организация дополнительной стоянки на 9 машиномест. Итого: 25 машиномест, в т.ч. 1 машиноместо для инвалидов.
Вот детальный план, учитывающий все ключевые аспекты.
Особенности универсама (отличие от магазина «у дома»)
-
Площадь: Обычно от 800 до 2500 кв.м. и более.
-
Формат: Полноформатный супермаркет с широким ассортиментом, часто с собственными производственными цехами (кулинария, пекарня, мясной/рыбный цех).
-
Логистика: Сложная схема движения товаров (зона приемки → складские помещения разных типов → торговая зона).
-
Высокая проходимость: Требования к износостойкости материалов, ширине проходов (не менее 1.4-1.6 м), организации очередей.
Ключевые этапы реконструкции
Фаза 0: Анализ и планирование (1-2 месяца)
-
Глубокий анализ текущей работы: Выявление узких мест, неэффективных зон, проблем с логистикой.
-
Разработка Технического задания (ТЗ): Определение нового состава помещений, ассортиментной матрицы, требований к технологическому оборудованию.
-
Получение исходных данных: Обследование конструкций, согласование с арендодателем (особенно по мощности электроснабжения), предварительные консультации с Роспотребнадзором и МЧС.
Фаза 1: Проектирование (3-4 месяца)
Проект будет полноценным, капитальным и пройдет государственную экспертизу.
Основные разделы проекта:
-
Технологические решения (ТХ): Основа всего. Детальная схема движения товаров и покупателей. Включает:
-
Схема размещения торгового оборудования (стеллажи, горки, холодильные установки, витрины).
-
Схема размещения производственного оборудования (печи, плиты, слайсеры) для кулинарии, пекарни, цехов.
-
Планировка складских помещений с зонированием: сухие склады, охлаждаемые камеры (+2...+6°C), морозильные камеры (-18...-24°C), камера для фруктов/овощей, камера для тары.
-
-
Архитектурные решения (АР):
-
Функциональное зонирование: Торговый зал, производственные цеха, складская группа, административно-бытовые помещения (гардероб, душевые, санузлы для персонала), технические помещения.
-
Организация грузового фронта (зоны приемки и выгрузки) с отдельным входом.
-
-
Конструктивные решения (КР): Усиление перекрытий под холодильные горки и стеллажи с товаром, устройство новых проемов, монтаж перегородок в цехах с соблюдением санитарных требований.
-
Инженерные системы (до 60% стоимости и сложности):
-
Холодоснабжение: Проектирование централизованной системы холодоснабжения с выносными компрессорно-конденсаторными блоками (ККБ) на крыше/фасаде и сетью хладотрасс по залу. Это эффективнее и дешевле в эксплуатации, чем индивидуальные агрегаты.
-
Электроснабжение: Мощность от 300 кВт и выше. Обязательны два независимых ввода (АВР) и дизель-генератор (ДГУ) для обеспечения работы холодильного оборудования и касс.
-
Вентиляция и кондиционирование: Раздельные системы для торгового зала, производственных цехов (особенно мощные вытяжки с жироуловителями), складских и бытовых помещений. Система осушения воздуха в торговом зале для предотвращения конденсата на витринах.
-
Водоснабжение и канализация: Подвод к технологическому оборудованию, мойкам, санузлам. Жироуловители, маслоуловители для цехов. Система оборотного водоснабжения для охлаждения ККБ.
-
Пожарные системы: АПС, СОУЭ 3-4 типа, АУПТ (водяное спринклерное) — обязательны.
-
Фаза 2: Согласования (2-3 месяца)
-
Государственная экспертиза проектной документации.
-
Согласование с Роспотребнадзором (ключевое!): Получение Санитарно-эпидемиологического заключения (СЭЗ). Особенно строгий контроль за проектами цехов.
-
Согласование с МЧС по пожарной безопасности.
-
Получение разрешения на реконструкцию.
Фаза 3: Организация и проведение работ (5-9 месяцев)
-
Стратегия: Часто применяется поэтапная реконструкция без закрытия или с закрытием части зала.
-
Последовательность (при полном закрытии):
-
Демонтаж, вынос оборудования и товара.
-
Монтаж инженерных магистралей: Сначала все сети (электрика, холод, вентиляция, канализация).
-
Черновые работы (перегородки, стяжки пола).
-
Отделочные работы.
-
Монтаж и пуско-наладка технологического оборудования (самое важное).
-
Монтаж торгового оборудования и мебели.
-
Брендирование, генеральная уборка и дезинфекция.
-
Фаза 4: Пусконаладка и открытие (1 месяц)
-
Комплексные испытания всех систем.
-
Холодоналив: Заправка системы хладагентом, выход на режим.
-
Обучение персонала.
-
Финальная приемка с участием всех контролирующих органов и заказчика.
Особые требования для универсама
-
Производственные цеха: Требуют отдельного проектирования по СанПиН (отделка кафельной плиткой на высоту 1.8 м, потолки с влагостойким покрытием, трехсекционные мойки, отдельные системы вентиляции).
-
Складская группа: Не менее 25-30% от торговой площади. Правильная организация зоны приемки с контролем веса и качества.
-
Пожарная безопасность: Сложная из-за большого количества горючих материалов (упаковка, товар). Обязательное разделение на противопожарные отсеки.
Ориентировочные сроки и бюджет (Москва, 2024)
-
Площадь универсама: 1000 - 1500 м².
-
Сроки полного цикла: 9 - 14 месяцев.
-
Бюджет реконструкции "под ключ" (работа + материалы + инженерия, без торгового и технологического оборудования):
-
Средний сегмент: от 60 000 до 90 000 руб./кв.м.
-
Премиум-сегмент: от 90 000 до 140 000 руб./кв.м.
-
-
Пример для универсама 1200 м² (средний сегмент): ~72 - 108 млн руб. (только ремонт и инженерия).
-
Стоимость технологического и торгового оборудования: Может составлять 70-100% от стоимости ремонта (еще +50-100 млн руб.).
Ключевые риски
-
Срыв сроков из-за сложности согласований с Роспотребнадзором.
-
Мит: Привлекать проектировщиков со специализацией на общепите и торговле. Начать неформальные консультации на ранней стадии.
-
-
Ошибки в проекте холодоснабжения (недостаточная мощность, неверная разводка).
-
Мит: Работать только с профильными инженерными компаниями, имеющими опыт с крупными супермаркетами.
-
-
Невозможность получить необходимые мощности электричества (500-800 кВт).
-
Мит: Этот вопрос должен быть решен до покупки бизнеса или подписания договора аренды. Требовать от арендодателя/города предоставления необходимых ТУ.
-
-
Потери выручки из-за длительного закрытия.
-
Мит: Разработать максимально быстрый график с работой в 2-3 смены, рассмотреть вариант поэтапной реконструкции.
-
Итог: Критерии успеха
Реконструкция универсама — это проект для консорциума профессионалов:
-
Генпроектировщик с опытом в торговле и пищевом производстве.
-
Специализированный субподрядчик по холодоснабжению.
-
Генподрядчик с опытом работы на объектах с повышенными санитарными требованиями.
-
Поставщик технологического оборудования с сервисной поддержкой.
Приоритеты: 1) Безупречное соблюдение СанПиН и МЧС. 2) Надежность инженерных систем (холод, электричество). 3) Эффективная технологическая планировка. 4) Минимизация срока простоя.
Это инвестиция, которая при грамотном исполнении должна окупиться за счет увеличения товарооборота, снижения эксплуатационных издержек и привлечения большего числа покупателей за счет современного формата. Реконструкция универсама продуктов в Москве — это масштабный, технологичный и высокоответственный проект, сравнимый с реконструкцией небольшого завода. Здесь соединяются жесткие нормативы, сложная логистика и необходимость часто работать без полного прекращения торговли.
