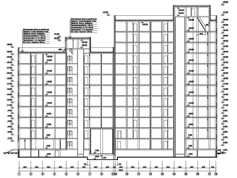
Типовой проект многоквартирного жилого дома переменной 9-12 этажности, 2-подъездного типа на 134 квартиры в г. Ивантеевка, Московской области. Конструктивная схема - сборный железобетонный каркас и стеновые панели производства. Все конструкции сертифицированы, проект прошел государственную МосОблЭкспертизу.
ТЭП
1. Площадь застройки - 991,85 кв.м
2. Общая площадь здания - 9359,88 кв.м
3. Общая площадь квартир - 6519,96 кв.м
4. Жилая площадь квартир - 3375,54 кв.м
5. Общая площадь офисов - 586,54 кв.м
6. Строительный объем - 29450,84 куб.м в том числе подземной части - 444,17 куб.м
Многоэтажный жилой дом на 9-12 этажей представляет собой в плане сложную форму в виде буквы Г с выступающими лоджиями и балконами. Особое внимание уделено сомасштабности здания человеку и окружающей городской среде за счет цветового решения облицовки дома. Из-за сложной в плане конфигурации и разнообразности секций здание приобретает интересный силуэт.
Между секциями многоквартирного дома запроектирован проезд из жилой зоны к местам отдыха, расположенным вдоль реки. Приятное настроение будет создавать размещенный по периметру здания газоны и цветники.
Здание многоквартирного дома состоит из 9 этажной и 12-ти этажной секции. Секции ориентированы меридионально, что обеспечивает полноценную инсоляцию всех квартир дома. 12-ти этажная секция запроектирована с незадымляемой лестничной клеткой и оборудована двумя лифтами.
Под всем домом на отм. -2300 выполняется технический коридор для пропуска сантехнических коммуникаций. Техкорридор имеет два обособленных рассосредоточенных выхода. Около выходов находится насосная, водомерный и тепловой узлы.
На первой этаже располагаются входы и жилые подъезды, оборудованные пандусами для малоподвижных групп населения. С обособленными входами на 1 этаже запроектированы офисные помещения, также снабженные пандусами для инвалидов. Для маломобильных групп населения разработаны специальные мероприятия в отдельном разделе.
Высота помещений наземных этажей 2.7 м.
Начиная со 2 этажа в здании жилого 9-12-этажного дома запроектированы однокомнатные, двухкомнатные и трехкомнатные квартиры. Внутренние перегородки толщиной 80мм выполняются на металлическом каркасе с обшивкой плитами ГСП и ГСПВ со звукоизоляцией из минераловатных плит.
Двери в летничных клетках с армированными остеклением, имеют устройства для самозакрывания и уплотнения в притворах.
Фасад здания отделывается керамогранитнойплитой. Наружные стены представляют собой навесные панели МЕТТЭМ на каркасе из оцинкаванного термопрофиля с базальтовым утеплителем «Isoroc» и обшивками из фиброцементных плит «Latonit» снаружи и гипсостручесных плит изнутри.
Все применяемые материалы – максимальной заводской готовности, что обеспечивает на объекте минимальную подгонку и монтаж фасадов путем технологически простого механического крепления. Мокрые процессы, отличающиеся технологической невоспроизводимостью, исключены. Отделочные работы внутри здания максимально просты, не требуют длительной подготовки, связанной с выравниваем и корректировкой геометрии, ориентированы на применение индустриальных материалов, что влияет на скорость и качество работ. Потолки и стены коридоров, лестничных клеток и низ маршей – водоэмульсионная окраска. Стены санузлов на высоту 1.8 м – глазурованная плитка. Стены офисных помещений – пентафталевая окраска.
Цоколь облицовывается керамогранитными плитами.
Кровля здания – плоская совмещенная рулонная с уклоном до 2-х %, с внутренним водостоком.
Кладка стен из блоков в Москве для многоквартирного жилого дома (МКД) — это сложный технологический процесс, жестко регламентированный нормами и контролируемый на всех этапах. Это не частное строительство, а индустриальное производство с высочайшими требованиями к качеству, скорости и безопасности. Вот детальный разбор темы от выбора материала до контроля качества.
I. Выбор типа блока (основные конкуренты в Москве)
Для несущих и самонесущих стен МКД в Москве используются преимущественно легкие бетоны: для наружных несущих стен современных МКД этажностью 6-12 этажей лидер — крупноформатный поризованный керамический блок (510 мм и более). Для внутренних несущих стен и перегородок — газосиликат, керамзитобетон.
II. Нормативная база (СП и ГОСТы)
Работы ведутся строго по:
-
СП 70.13330.2012 «Несущие и ограждающие конструкции» (актуализированный СНиП 3.03.01-87).
-
СП 15.13330.2020 «Каменные и армокаменные конструкции».
-
СП 371.1325800.2017 «Конструкции из мелких блоков. Правила производства работ».
-
ГОСТ на конкретный тип блоков (например, ГОСТ 31360 для газобетона).
-
Проект производства работ (ППР) и технологическая карта (ТК) на кладку — обязательные документы на стройплощадке.
III. Технология и организация работ
1. Подготовительный этап:
-
Приемка блоков: Проверка паспортов качества, сопроводительных документов, лабораторных испытаний (прочность, плотность, теплопроводность). Визуальный контроль геометрии.
-
Подготовка основания: Верх монолитного ростверка или перекрытия должен быть выровнен. Обязательна гидроизоляция (рубероид, гидроизол) под первый ряд кладки для отсечения капиллярного подсоса влаги.
2. Инструменты и оборудование:
-
Кельма-ковш для тонкошовной кладки.
-
Резиновая киянка для выравнивания блоков.
-
Уровень (пузырьковый и лазерный), шнур-причалка.
-
Ручная или электрическая пила (штроборез, фреза) для резки блоков.
-
Миксер для приготовления клея/раствора.
-
Леса, подмости (не допускается кладка с приставных лестниц).
3. Ключевые технологические операции:
-
Кладка первого ряда: Самая ответственная операция. Укладывается на цементно-песчаный раствор (для выравнивания неровностей основания). Контроль по уровню и диагоналям.
-
Приготовление и нанесение кладочной смеси:
-
Для газобетона/теплой керамики — специальный тонкослойный клей (2-3 мм). Наносится гребенчатым шпателем/ковшом.
-
Для керамзитобетона — цементно-песчаный раствор марки М100 или выше.
-
-
Перевязка блоков: Обязательное смещение вертикальных швов в соседних рядах не менее чем на 0.4 высоты блока (обычно 100-150 мм). Углы и примыкания — с перевязкой.
-
Армирование (обязательно!):
-
Каждый 3-4 ряд кладки — арматурными стержнями (А-III, Ø6-8 мм), уложенными в штробы, заполненные клеем.
-
Под оконными проемами — армопояса длиной не менее 900 мм в каждую сторону от проема.
-
Вертикальное армирование в углах, местах сопряжения стен, в высоких простенках.
-
-
Устройство армопоясов (монолитных железобетонных обвязок):
-
Под каждым перекрытием (между этажами) и под мауэрлатом кровли.
-
Наружный контур армопояса часто утепляется ЭППС для ликвидации мостика холода.
-
-
Кладка дверных и оконных проемов: Устройство железобетонных или U-образных (для газобетона) перемычек либо применение готовых армированных блочных перемычек.
IV. Особенности для московского строительства
-
Сезонность и зимняя кладка: Работы ведутся круглогодично. При температуре ниже +5°С:
-
Используется зимний клей с противоморозными добавками.
-
Блоки и смеси хранятся в отапливаемых помещениях.
-
Возводимые стены закрываются тепловыми завесами (тепляками) с тепловыми пушками.
-
-
Контроль качества (многоуровневый):
-
Пооперационный контроль прораба/мастера.
-
Лабораторный контроль: Отбор проб клея/раствора, испытание на прочность.
-
Контроль со стороны застройщика (технадзор).
-
Контроль со стороны государственного строительного надзора (Госстройнадзор Москвы) на критичных этапах.
-
-
Требования к персоналу: Каменщики должны иметь допуски по профессии, пройти инструктаж по безопасности и обязательно ознакомиться с технологической картой на конкретный объект.
V. Смета и экономика (ориентиры по Москве)
-
Стоимость работ (кладка + материалы, «под ключ»): От 4 500 до 7 000 руб./м³ в зависимости от типа блока, этажности, сложности объекта.
-
Влияет на стоимость:
-
Тип блока (керамика дороже газобетона).
-
Необходимость зимнего производства.
-
Сложность архитектуры (эркеры, криволинейные стены).
-
Объем армирования.
-
Итог: Кладка стен из блоков в московском многоэтажном строительстве — это высокоорганизованный процесс, где качество и скорость напрямую зависят от соблюдения технологии, квалификации бригад и многоуровневого контроля. Успешный результат — это прочная, теплая и геометрически точная коробка здания, являющаяся основой для всех последующих работ. Ключевой тренд — использование крупноформатных материалов с тонким швом для повышения теплоэффективности и скорости строительства.
