Проектирование ФОК со спортивным залом и бассейном в Московской области — это действительно увлекательная задача! В последние годы наблюдается рост интереса к таким объектам, ведь они становятся центрами притяжения для местных жителей. Реконструкция существующих зданий или строительство новых комплексов требует тщательного планирования и учета всех нюансов. Важно не только создать функциональное пространство, но и сделать его комфортным и привлекательным для посетителей. Спортивный зал должен быть оснащен современным оборудованием, а бассейн — отвечать всем стандартам безопасности. Такой проект может стать настоящим подарком для сообщества, способствуя развитию массового спорта и здорового образа жизни. Поэтому стоит задуматься о том, как лучше всего реализовать эту идею, чтобы она принесла максимальную пользу всем жителям региона!
Здание физкультурно-оздоровительного комплекса трехэтажное, прямоугольное в плане, имеет размеры в осях 54х48 метра. Общая площадь здания 6133,3 кв.м с универсальным спортивным залом и бассейном 25 м. Площадь застройки земельного участка 2904,2 кв.м, строительный объем 45092,8 м3, этажность здания - 3. Конструктивная схема здания - металлический несущий каркас и сэндвич панели.
Технико-экономические показатели проекта ФОК со спортивным залом и бассейном:
- общая площадь здания 6133,3 м2
- площадь застройки 2904,2 м2
- строительный объем 45092,8 м3
Здание физкультурно-оздоровительного комплекса трехэтажное, прямоугольное в плане, имеет размеры в осях 54х48 метра.
класс функциональной пожарной опасности: Ф3.6
- степень огнестойкости здания: I
- класс конструктивной пожарной опасности: С0
- категория помещений по взрывопожарной и пожарной опасности: Д
Комплекс функционально разделен на 4 зоны:
- зона помещений свободного назначения, расположенная на первом этаже;
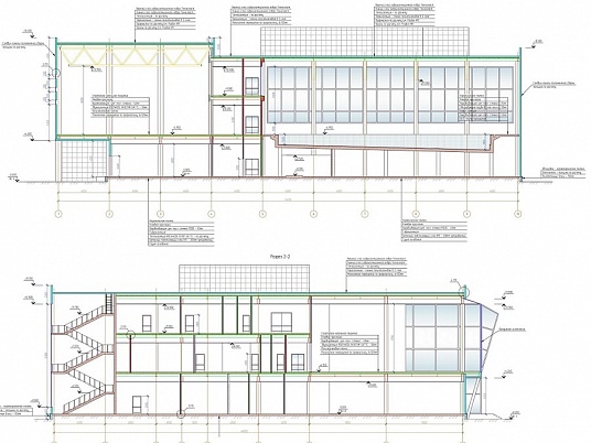
- зона физкультурно-спортивного зала - на втором этаже размером 30х18 м с фитнес зоной на втором и третьем этажах;
- зона физкультурно-оздоровительного бассейна на втором этаже с чашей 25х11м с устройством помещений для обслуживания занимающихся, а также помещения с устройствами, обеспечивающими его техническую эксплуатацию, расположенные на первом этаже;
- административная зона располагается на 3 этаже.
Единовременная пропускная способность физкультурно-спортивного зала - 32 человека в смену, физкультурно-оздоровительного бассейна - 48 человек. Планировочное решение предусматривает разделение функциональных потоков. Здание имеет один центральный вход для занимающихся, а так же обособленные входы для в помещения свободного назначения. В вестибюльном блоке на первом этаже потоки посетителей направляются по лестнице или на лифте в фойе второго этажа и далее на третий этаж в зону фитнеса.
Проектом предусмотрены мероприятия для маломобильных групп населения: пандусы, лифты. Внутренняя планировка здания полностью подчиняется функциональному назначению, технологическим процессам и обеспечивается принятыми модульными сетками колонн.
В физкультурно-оздоровительном комплексе со спортивным универсальным залом и плавательным бассейном предполагается проведение физкультурно-оздоровительных и учебно-тренировочных занятий. Объмно-планировочные решения комплекса, обеспечивают доступность, как здоровым гражданам, так и инвалидам различной категории, включая специальную разметку залов и оборудование санитарно-бытовых помещений.
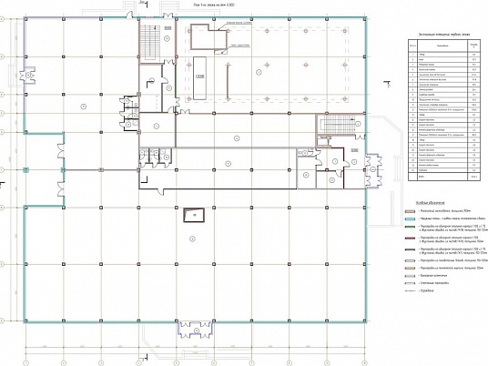
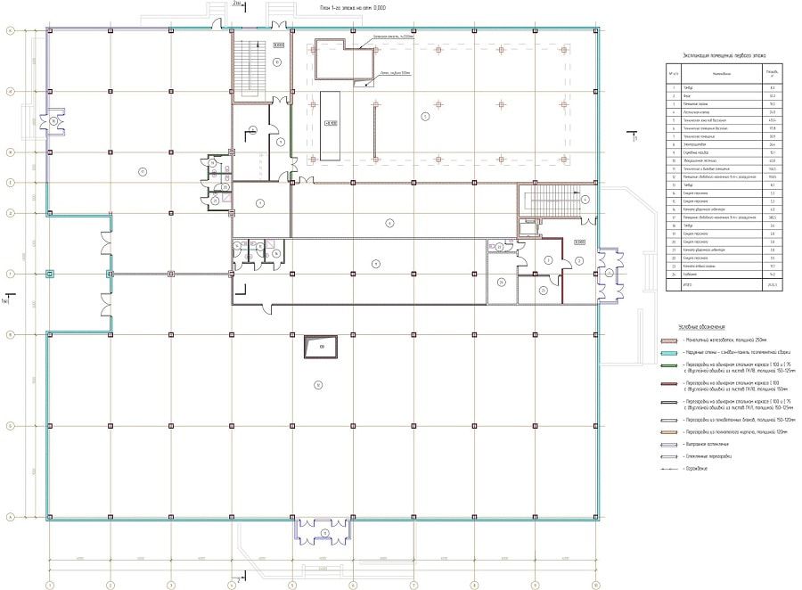
На первом этаже проектируемого физкультурно-оздоровительного комплекса на отм. 0,000 расположены:
- два блока помещений свободного назначения площадью 1150,5м2 и 380,5м2,
- зона технического обслуживания бассейна,
- фойе с помещением охраны.
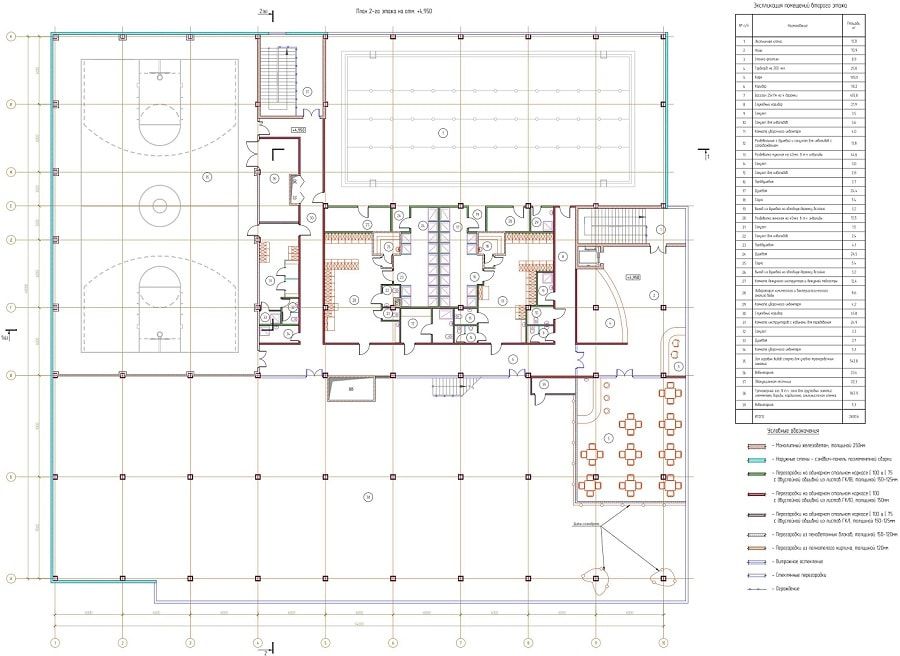
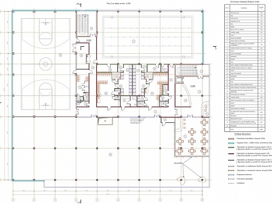
На втором этаже на отм. + 4,950 расположены:
- входная группа с кафе,
- зона бассейна,
- спортивный зал,
- тренажерный зал,
Во входной группе комплекса на втором этаже расположены фойе с зоной ресепшн, гардероб на 200 чел.и санузлы, в том числе санузел для посетителей маломобильных групп населения (МГН). Для посетителей физкультурно-оздоровительного комплекса предусмотрено кафе на 30 чел.
Бассейн для плавания с физкультурно-оздоровительной ванной размерами 25х11м в осях 5-10/Е-К имеет глубину в мелкой части 1,2м, а в глубокой 1,8м. Ширина дорожки бассейна составляет 2,5м. Высота зала бассейна до верха выступающих конструкций принята 6,65м. Внутренняя планировка зоны бассейна соответствует гигиеническому принципу поточности: передвижение посетителей осуществляется по функциональной схеме - гардероб, раздевальная, душевая, ножная ванна, ванна бассейна. В раздевальных предусмотрена зона для переодевания инвалидов. Так же в зоне бассейна предусмотрено помещение с душевой и санузлом для инвалидов с сопровождением. В блоке с общими раздевальными предусматриваются душевые и санузлы, оборудованные соответствующим образом.
Проектирование физкультурно-оздоровительного комплекса (ФОК) с залом и бассейном в Московской области — это социально значимый, но технически очень сложный проект. Он сочетает в себе высокие требования к безопасности, микроклимату и энергоэффективности. Вот детальный разбор всех ключевых аспектов.
Концепция и нормативная база
-
Тип объекта: Непроизводственное здание класса функциональной пожарной опасности Ф3.6 (физкультурно-оздоровительные комплексы).
-
Основные нормы: СП 31-112-2004 (Физкультурно-спортивные залы), СП 310.1325800.2017 (Бассейны), СанПиН 1.2.3685-21, а также строжайшие нормы МЧС и Роспотребнадзора.
-
Целевая аудитория: Широкая — от детей и любителей до спортсменов. Это влияет на состав помещений (детские чаши, зоны для зрителей).
Особенности проектирования в Московской области
-
Автономность коммуникаций: Во многих районах МО нет централизованных сетей. Потребуются:
-
Скважина для водоснабжения с системой очистки (обезжелезивание, умягчение — критично для бассейна!).
-
Локальные очистные сооружения (ЛОС) для канализационных стоков.
-
Автономный источник тепла (газовая котельная или мощный тепловой насос).
-
-
Энергоэффективность: Высокие затраты на подогрев воды и вентиляцию. Проект должен закладывать решения для их снижения (рекуперация, тепловые насосы утилизации тепла).
-
Согласования: Согласование происходит на уровне муниципального района/городского округа с территориальными управлениями Роспотребнадзора, МЧС и Главгосэкспертизой (для капитальных объектов).
Состав помещений ФОК (примерная структура)
-
Зона бассейна:
-
Ванна бассейна (25 м, 4-6 дорожек, глубина 1.2-1.8 м, возможно, детская чаша).
-
Обходные дорожки (ширина не менее 2 м).
-
Раздевалки, душевые, санузлы, фены.
-
Помещение для подготовки и дезинфекции воды (обязательно!): Химическая лаборатория, склады реагентов.
-
-
Зона спортивного зала:
-
Универсальный игровой зал (размеры для мини-футбола/волейбола/баскетбола ~36х18 м, высота не менее 7 м).
-
Раздевалки, душевые, санузлы для зала.
-
Инвентарные, судейские.
-
-
Общественная зона:
-
Входная группа, вестибюль с гардеробом, администрация, медицинский пункт.
-
Буфет/кафе.
-
Трибуны для зрителей (при необходимости).
-
-
Служебно-технические помещения:
-
Главный щитовой узел, венткамеры, ИТП/котельная, узел водоподготовки бассейна.
-
Кладовые, помещения для персонала.
-
Ключевые разделы проектирования (технические сложности)
1. Архитектурно-планировочные решения (АР)
-
Зонирование: Четкое разделение «сухой» и «мокрой» зоны. Потоки посетителей бассейна и зала не должны пересекаться.
-
Высотные отметки: Важно правильно связать уровень чаши бассейна, обходной дорожки, душевых и остальных помещений.
-
Отделочные материалы: Влагостойкие, нескользящие, легко моющиеся (керамогранит, специальные покрытия для пола зала).
2. Конструктивные решения (КР)
-
Большие пролеты: Для спортивного зала требуются безопорные конструкции (металлические фермы, деревянные клееные балки). Расчет нагрузок на подвесное оборудование (свет, баскетбольные щиты).
-
Чаша бассейна: Монолитная железобетонная конструкция с сложной гидроизоляцией (шнуры, мембраны, проникающие составы). Требуется расчет на устойчивость при опорожнении.
-
Повышенные нагрузки на фундаменты из-за большого объема воды.
3. Инженерные системы (80% сложности и стоимости)
А. Система водоподготовки бассейна (самая важная):
-
Технология: Обязательна рециркуляция с непрерывной фильтрацией и дезинфекцией.
-
Оборудование: Фильтры (песочные или картриджные), насосные группы, станции дозирования реагентов.
-
Дезинфекция: Чаще всего комбинированная: хлорирование + УФ-облучение (или озонирование). Это требование современных норм для снижения хлорамидов.
-
Подогрев воды: Теплообменник от ИТП/котельной.
Б. Вентиляция и осушение воздуха (критически важно!):
-
Расчет: Отдельный расчет для зала и для зоны бассейна. В зоне бассейна — поддержание температуры воздуха на 1-2°C выше температуры воды (во избежание конденсата) и относительной влажности 50-65%.
-
Система: Приточно-вытяжная вентиляция с рекуперацией тепла и обязательным осушением (канальные осушители или интегрированная система).
-
Особенность: Вытяжка должна быть организована с нижней зоны (удаление тяжелого хлористого воздуха).
В. Водоснабжение и канализация:
-
Питьевое водоснабжение и отдельная система для заполнения и подпитки чаши бассейна (часто требует дополнительной подготовки).
-
Канализация с учетом больших объемов сброса при регенерации фильтров и опорожнении чаши.
Г. Электроснабжение:
-
Высокие мощности на вентиляцию, подогрев воды и освещение зала.
-
Категория надежности электроснабжения не ниже II. Резервный источник (ДГУ) для систем вентиляции и аварийного освещения.
Д. Противопожарные системы:
-
АПС, СОУЭ, АУПТ (чаще всего водяное). Особое внимание к путям эвакуации из залов.
Этапы проекта и согласований
-
Предпроект (2-3 мес.): ТЭО, получение ГПЗУ, предварительные ТУ, обследование участка (особенно на возможность устройства скважины и ЛОС).
-
Проектирование (6-9 мес.): Разработка полного комплекта проектной документации. Обязателен раздел ТХ (технология) для бассейна.
-
Экспертиза и согласования (4-6 мес.):
-
Государственная экспертиза проектной документации.
-
Согласование Роспотребнадзора (особенно строгое по бассейну — расчеты водообмена, дезинфекции).
-
Согласование МЧС (пожарные решения для здания с массовым пребыванием людей).
-
-
Получение разрешения на строительство.
Ориентировочные затраты и сроки (МО, 2024)
-
Площадь типового ФОК (зал 36х18 + 25-м бассейн): ~2500-3500 м².
-
Стоимость проектирования: от 4 000 до 7 000 руб./м².
-
Стоимость строительства "под ключ" (коробка + инженерия + чаша + отделка):
-
Базовый уровень: от 90 000 руб./м².
-
Современный уровень (с энергоэффективным оборудованием): от 120 000 руб./м².
-
-
Итого бюджет строительства: ~225 - 420 млн руб. (без учета стоимости земли).
-
Сроки: Проектирование + экспертиза: 10-15 мес. Строительство: 14-20 мес.
Ключевые риски и их минимизация
-
Неверный расчет систем вентиляции и осушения. → Конденсат, грибок, дискомфорт.
-
Решение: Привлекать специализированную организацию для проектирования ОВК бассейна.
-
-
Ошибки в водоподготовке. → Мутная вода, раздражение глаз, санкции Роспотребнадзора.
-
Решение: Выбор проверенного поставщика технологического оборудования с сервисным договором.
-
-
Превышение бюджета на инженерные сети. → Частая проблема из-за сложности систем.
-
Решение: Детальный инженерный раздел в проекте и резерв 15-20%.
-
-
Проблемы с получением мощности на электроснабжение. → Остановка проекта.
-
Решение: Начинать процесс получения ТУ одновременно с началом проектирования.
-
Вывод: Критические факторы успеха
-
Команда: Проектировщики обязательно должны иметь успешный опыт проектирования бассейнов. Нужен не просто архитектор, а инженер-технолог по бассейнам.
-
Фокус на инженерии: 70% внимания — системам водоподготовки, вентиляции и осушения. На этом нельзя экономить.
-
Ранние согласования: Получить предварительные заключения Роспотребнадзора по концепции водоподготовки до начала основного проектирования.
-
Энергоэффективность: Внедрение тепловых насосов для утилизации тепла от сточных вод душевых и систем вентиляции может значительно снизить эксплуатационные расходы.
Проект ФОКа с бассейном — это инвестиция в социальный капитал и здоровье, но требующая высочайшей технической грамотности и дисциплины на всех этапах.
