Отправьте заявку на ремонт в Москве или позвоните +7 (965) 128-86-66
Ищите готовый проект для реконструкции или ремонта здания?
В наличии более сотни проектов внесенных в реестр типовой и экономически эффективной проектной документации Минстроя РФ для повторного использования в Москве и Московской области.
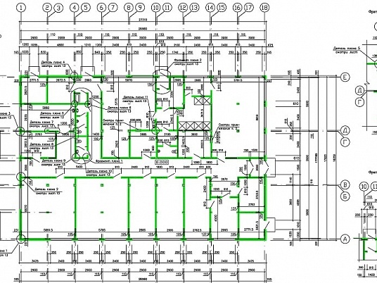
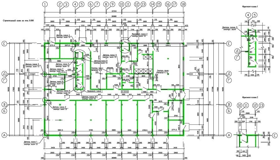
Проектирование и монтаж 1-этажного административно-бытового здания (АБК) размерами 27х18 метров и площадью 400 м2, с несущим каркасом из ЛСТК по типовому проекту. Район строительства – Сланцы, Ленинградская область. Отделочные материалы согласно проекту, дополнительная теплоизоляция не требуется.
Проектная документация административно-бытового здания (АБЗ) завода по переработке отработанных аккумуляторных батарей по адресу г. Сланцы разработана на основании задания на проектирование.
При проектировании учтены следующие требования:
- СНиП 2.08.02.89* «Общественные здания»;
- СНиП 2.01.02-85* «Пожарная безопасность зданий и сооружений»;
- СНиП 21-01-97* «Пожарная безопасность зданий и сооружений»;
- СНиП 11-3-79* «Строительная техника» Госстрой России, М., 1998г;
- СНиП 31-05-03 «Общественные здания административного назначения»;
- СНиП 35-01-2001 «Доступность зданий и сооружений для маломобильных групп населения»;
- СНиП II-26-76 «Кровли».
Все применяемые материалы, изделия и конструкции – сертифицированы.
Здание АБК предназначено для размещения администрации завода и санитарно-бытовых помещений рабочих и служащих.
Проектируемое административно-бытовое здание прямоугольной формы одноэтажное с размерами в осях 26,98 х 17,92 м и высотой до низа выступающих конструкций 2,62 м.
Металлический каркас модуля выполнен из труб квадратного сечения 100х100х4 мм. с размерами по наружным граням металлических элементов. 3,0х6,0 м. и высотой до низа выступающих конструкций 2,62 м.
Металлический каркас устанавливается на монолитную плиту б=400 мм.
Наружные стены выполнены из конструкций МЕТТЭМ:
- стальной профилированный настил HC-35 (ГОСТ 24045-94) с креплением на стальную конструкцию. Подконструкция комплектуется различными профилями, кляймерами, а так же метизами, дюпелями и анкерами;
- утеплителя из минеральной плиты ”ISOVER” KL 37, плотностью 45кг/куб.м;
- утеплителя из минеральной плиты ”ISOVER” KL 37, плотностью 45кг/куб.м;
- пароизоляции;
- гипрока б=16мм.
Цоколь монолитный б=150 мм. из бетона В20, F100, W6. Уличная сторона штукатурится структурной штукатуркой фирмы “Атлас”.
Подкровельное пространство расположено на отм. +2,780 м. Предназначено для прокладки технических коммуникаций.
Перекрытие на отм. +2,780 м. состоит из рифлёного настила б=5мм. ГОСТ 8568-57*, ветрозащитной плёнки, деревянной конструкции с шагом 600 мм. с за-полнением пустот рулонным материалом "ISOVER" KT-40-твин плотностью 15кг/куб.м., пароизоляции, подвесного и подшивного потолка.
Крыша двухскатная из профилированного листа с полимерным покрытием, неутеплённая.
Вдоль наружных стен выполняется асфальто-бетонная отмостка б=30-100 мм. и шириной 1200 мм. по уплотненному щебёночному основанию и теплоизоляционному слою пеноплексом б=50 мм.
Оконные блоки – металлопластиковые, двухкамерные стеклопакеты.
Дверные блоки – фирмы изготовителя, выбираются заказчиком.
Подвесные и подшивные потолки фирмы “Armstrong” и “ТИГИ КНАУФ”
Класс ответственности сооружения – II
Класс функциональной пожарной опасности – Ф4.3
Степень огнестойкости здания – II
Класс конструктивной пожарной опасности – С2
За условную отметку 0.000 принята отметка пола административно-бытового здания, что соответствует абсолютной отметке 41.45.
Технико-экономические показатели
1. Площадь застройки 497,58 м.кв.
2. Общая площадь 397,78 м.кв.
3. Общая площадь офисных помещений 148,85 м.кв.
4. Этажность 1 шт.
5. Строительный объём 1903,00 м.куб.
Медицинское обслуживание
В здание АБК расположен медпункт (помещение 127).
Мероприятия по обеспечению пожарной безопасности
Перегородки на путях эвакуации из двух слоёв гипрока с обеих сторон по металлическому каркасу с заполнением минеральными плитами “ISOVER” KL 37.
В подкровельном пространстве на отм. +2.780 заложен утеплитель “ISOVER” KT 40-TWIN, копия сертификата пожарной безопасности №ССПБ.RU.ОП002.Н.02161 копия санитарно-эпидемиологического заключения №33.ВЛ.07.570.П.005133.09.05 представлены.
Доступность зданий и сооружений для маломобильных групп населения
В связи с тяжёлым производственным процессом и территориальной удалённости от центра в штате компании отсутствуют представители маломобильных групп населения.
Бытовое обслуживание
Проектом предусматривается комплекс бытовых устройств в соответствии с требованиями СНиП 2.09.04-87* по расчёту.
